






Seit Ende des Zweiten Weltkriegs wird im Salzkammergut versucht, das Geheimnis des 103 Meter tiefen, 2000 Meter langen und 400 Meter breiten Sees zu lüften. Dies ist bisher nur zum Teil gelungen. Kisten mit Goldbarren, Schmuck und anderen Preziosen, die dort in der Endzeit des Deutschen Reichs von Mitarbeitern des Reichssicherheitshauptamtes (RSAH) versenkt worden sein sollen, regen bis heute die Fantasie an. Niemand hat sie bisher gefunden, und was an die Oberfläche gehoben wurde, waren mit Steinen gefüllte Eisenkisten und jede Menge im KS Sachsenhausen bei Berlin im Rahmen der streng geheimen "Aktion Bernhard" gefälschte britische Pfundnoten. KZ-Häftlingen mussten während des Kriegs die Geldscheine zum Zwecke der Schädigung der englischen Wirtschaft, zur Finanzierung von Sabotageunternehmen und weiteren Aktionen herstellen.
Bank von England ließ sich nicht täuschen
RSHA-Chef Heydrich hatte bei Kriegsbeginn befohlen, die Scheine originalgetreu herzustellen, "dass selbst die erfahrensten britischen Pfundspezialisten keine Unterschiede herausfinden können". Das Problem wurde durch Nachbildung des in Spechthausen bei Eberswalde hergestellten Büttenpapiers, aber auch Aufklärung der Nummerncodes, Wiedergabe von Wasserzeichen und Herstellung der Druckplatten gelöst. Doch zeigten sich winzige Abweichungen der "auf alt" getrimmten Nachdrucke gegenüber den Originalen, so dass die Bank von England aufmerksam wurde und Gegenmaßnahmen ergriff. Nach dem Krieg brachte sie neue Geldscheine mit verbesserten Sicherheitsmerkmalen heraus, die alten Pfundnoten wurden nur nach genauer Prüfung umgetauscht. Übrigens scheiterte der Plan der Deutschen, durch Abwurf gefälschter Pfundnoten über England Unsicherheit beim Kriegsgegner zu erzeugen und seine Wirtschaft zu schädigen, weil der Luftkrieg von deutscher Seite verloren ging.
In einem Beitrag über das in Spechthausen bei Eberswalde für den Druck von Geldscheinen produzierte "Wilcox-Papier" hat der Verfasser dieses Beitrags vor einiger Zeit einen solchen von Würmern angefressenen Geldschein abgebildet, der in der Gedenkstätte des ehemaligen KZ Sachsenhausen ausgestellt ist. Jetzt erhielt er diese e-Mail von André Rasch aus Neuss: "Beim Stöbern im Internet in Verbindung mit der Aktion Bernhard bin in zufällig auf Ihren Artikel gestoßen. Dabei ist mir insbesondere die von Ihnen gezeigte Zehn-Pfund-Note aufgefallen. Anhand der Seriennummer und des Zustandes, weiß ich, das diese aus der Bergungsaktion aus dem Toplitzsee 1983 stammen muss, die seinerzeit Heinz Lange, der Freund meines inzwischen verstorbenen Vaters, mit Jürgen Schauer unter der Leitung von Professor Hans Fricke in 93 Meter Tiefe gefunden hatten. Sie hatten damals mit dem Greifer des Forschungstauchboots vom Typ Jago heimlich auf zwölf Meter Tiefe einige Scheine abgelegt, die Jürgen Schauer etwa vier Wochen später in einer Nacht- und Nebelaktion nachts geborgen hat. Denn die gefundenen Fälschungen mussten damals im Auftrag der englischen Bank vernichtet werden. Ich bekam vor einiger Zeit von Heinz Lange zwei Zehn-Pfund-Noten aus der Aktion Bernhard geschenkt, die er seinerzeit im Toplitzsee gefunden hatte und auch aus der Serie K166 stammen. Darf ich fragen, woher die von Ihnen gezeigte Note stammt? Denn die heimlich zur Seite geschaffenen Pfundnoten wurden damals zur Erinnerung nur im Bergungsteam heimlich verteilt. Ich finde es toll, nicht nur ein Stück Geschichte, sondern auch alles Weitere dahinter zu wissen."
Polizei mit wachsamen Augen
Ergänzend bekam ich von André Rasch die Information, dass bei der offiziellen Bergung natürlich von 1983 nichts mitgenommen werden durfte, denn das amerikanische Militär hat die geborgenen Schätze an die englische Bank übergeben. "Überall um den See waren Polizei, Militär und der Staatsschutz und hat alles genau beobachtet. Heinz Lange war mit seinen Kollegen eine Woche lang im Einsatz und hat Minen und Raketen und auch ein Maschinengewehr geborgen. Eigentlich sollten sie an den gesprengten Felswänden suchen, ob da das Nazigold abgekippt wurde. Sie konnten unter dem Felsen zwar drei Stahlkisten bergen, die sie vorher mit dem Greifer freigelegt hatten. In den verrosteten Kisten aber waren nur Backsteine. Das Gold wurde wohl gar nicht versenkt, sondern schon vorher von den Nazis abgezweigt. Bei der weitern Suche auf dem Boden des Toplitzsees fand Heinz Lange, der mit Jürgen Schauer im U-Boot saß, an anderer Stelle die Pfundnoten aus der ,Operation Bernhard'. Die Ergebnisse der Forschungen über geheimnisvolle ,Tiefsee- Welt' und die Funde aus der Nazizeit hat der Zoologe und Filmemacher Hans Fricke in seinem Buch ,Mythos Toplitzsee - Tauchfahrt in die Vergangenheit' publiziert, das 2009 im Almathea-Verlag Wien erschien (256 Seiten, zahlreiche Abbildungen, ISBN-13: 978-3-85002-676-5)." Ergänzend sei erwähnt, dass Karl-Heinz Walz in seinem Buch "Falschgeld - Spannendes und Kriminalistisches, Ernstes und Amüsantes aus der Welt der Geldfälscher" (Gietl Verlag Regenstauf 1999) ausführlich auch über die ungeachtet großen technischen Aufwandes im KZ Sachsenhausen nicht ganz perfekt gelungenen "Blüten" berichtet hat und auch auf den "Schatz vom Toplitzsee" eingegangen ist.
Banknotenpapier aus Spechthausen
Zum dunkelsten Kapitel der Geschichte der Spechthausener Papierfabrik gehört die Anfertigung von Papier für Falschgeld, das im KZ Sachsenhausen gedruckt wurde. Die Papierfabrik Gebr. Ebart hatte einen guten Ruf. Sie stellte ab 1882 das patentierte "Wilcox-Faserpapier" und lieferte dieses Spezialpapier für Banknoten an die Reichsbank. Unter der Aufsicht des SS-Sturmbandführers Bernhard Krüger wurde Falschgeld im Wert von rund neun Millionen Pfund Sterling auf diesem Papier gedruckt. Die Fabrik wurde als "kriegswichtig" eingestuft, die Arbeiter waren "uk" gestellt und wurden als "unabkömmlich" nicht zum Kriegsdienst eingezogen. Aus einer Chronik ist zu erfahren, dass während des Zweiten Weltkriegs in Spechthausen ganz normale Banknoten gedruckt wurden, die aber aus Sicherheitsgründen erst in der Berliner Reichsdruckerei ihre Kontrollnummern erhielten. Als am 22. April 1945 sowjetischen Truppen einrückten, lagen ungeschnittene Bogen für Briefmarken und Banknoten, aber auch halbfertige und fertige Scheine ohne Kontrollnummern in der Druckerei verstreut. 1946 wurden die Maschinen mit der Eisenbahn als "Reparation" in die Nähe der sowjetischen Stadt Swerdlowsk gebracht. Zeitweilig von der Nationalen Volksarmee der DDR genutzt, wird die ehemalige Papierfabrik seit einigen Jahren in eine Wohnsiedlung umgewandelt.
Film nach Adolf Burgers Erinnerungen
Der 2016 verstorbene Drucker und Holocaust-Überlebende Adolf Burger schilderte in seinem mehrfach aufgelegten Erlebnisbericht "Des Teufels Werkstatt. Die größte Geldfälscheraktion der Weltgeschichte", was er als jüdischer Häftling im KZ Sachsenhausen erlitt und wie er und seine Kameraden unter Todesdrohungen zum Fälschen von Pfundnoten und in geringerem Maße auch von Dollar und anderen Banknoten gezwungen wurden. Nach Burgers Erinnerungen wurde der Film "Der Fälscher" in der Regie von Stefan Ruzowitzky mit August Diehl als Adolf Burger gedreht und bekam 2008 einen Oscar als bester ausländischer Film.
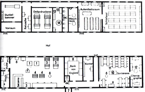
In der Ausstellung der Gedenkstätte Sachsenhausen ist zu erfahren, dass die Druckplatten für die im Tiefdruckverfahren und daher sehr aufwändig hergestellten Pfundnoten aus der Chemiegrafischen Anstalt des Reichssicherheitshauptamtes im Schloss Friedenthal bei Oranienburg stammen. Hier unterhielt die SS nur für kurze Zeit eine Werkstatt zur Herstellung falscher Banknoten. Nach deren Umzug in das KZ Sachsenhausen nutzte Himmlers Terror- und Mordtruppe das Gebäude zur Ausbildung von Agenten und Spionen. Kupferstecher unter den Gefangenen mussten in Sachsenhausen alle Linien und Punkte auf den aus Friedenthal stammenden Platten mit größter Genauigkeit nachstechen. Erst als Krüger mit dem Ergebnis zufrieden war, konnte die Serienproduktion beginnen. Wegen des für das Deutsche Reich katastrophalen Kriegsverlaufs wurde sie im Februar 1945 eingestellt. Die ins KZ Ebensee, eine Außenstelle des KZ Mauthausen, verlegten Geldfälscher wider Willen wurden am 6. Mai 1945 von den Amerikanern befreit.
Damit war die Geschichte noch nicht abgeschlossen, denn die englischen Blüten waren weiterhin im Umlauf. Um zu sehen, welche Dimension das "Unternehmen Bernhard" hatte und welchen Schaden es angerichtet hat, wurden Nachforschungen angestellt. Da das Geldfälschen kein Kriegsverbrechen ist, haben die Siegermächte und nach ihnen die Justiz der Bundesrepublik Deutschland die Verantwortlichen gerichtlich nicht belangt. SS-Sturmbannführer Krüger verbrachte vier Jahre in alliierter Haft und lebte nach seiner Entlassung in Dassel (Niedersachsen) und arbeitete in der Papierfabrik Hahnemühle, die neben der Fabrik in Spechthausen das Papier für die Pfundnoten geliefert hatte.
17. Oktober 2021
Zurück zur Themenübersicht "Münzen und Medaillen"